
The Concrete Pavilion
Introducing an in-situ concrete extension to a traditional Edwardian terraced house in Acton, this project explores ideas of structure and symmetry.
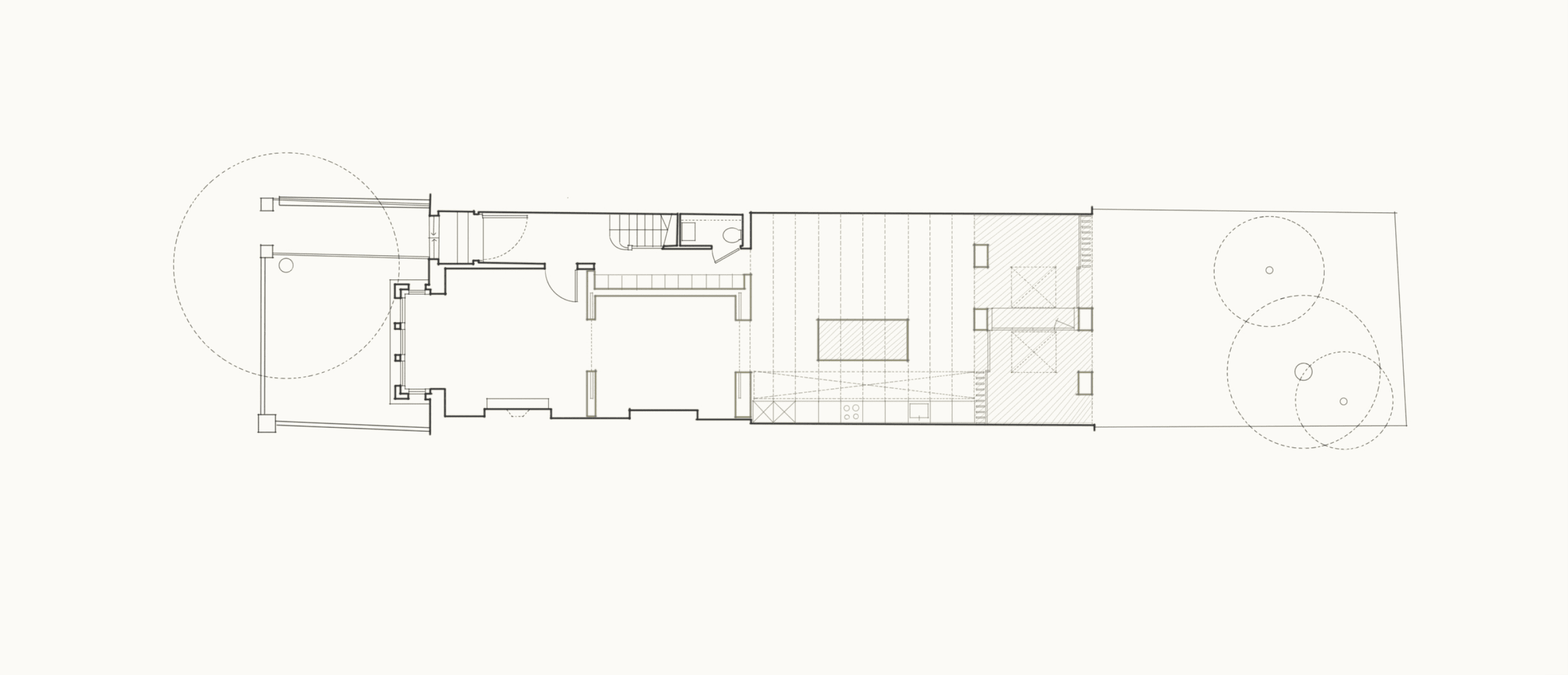
The rear extension consists of a four-column concrete pavilion, supporting the roof slab and the existing home. This structure becomes a recurring motif; inside, the kitchen island takes on this same design, becoming a scaled-down version of the extension. With monolithic, yet airy, proportions, it avoids the bulkiness of a standard kitchen island, letting space flow through below. In each case, a concurrent feeling of something light and something heavy is created.
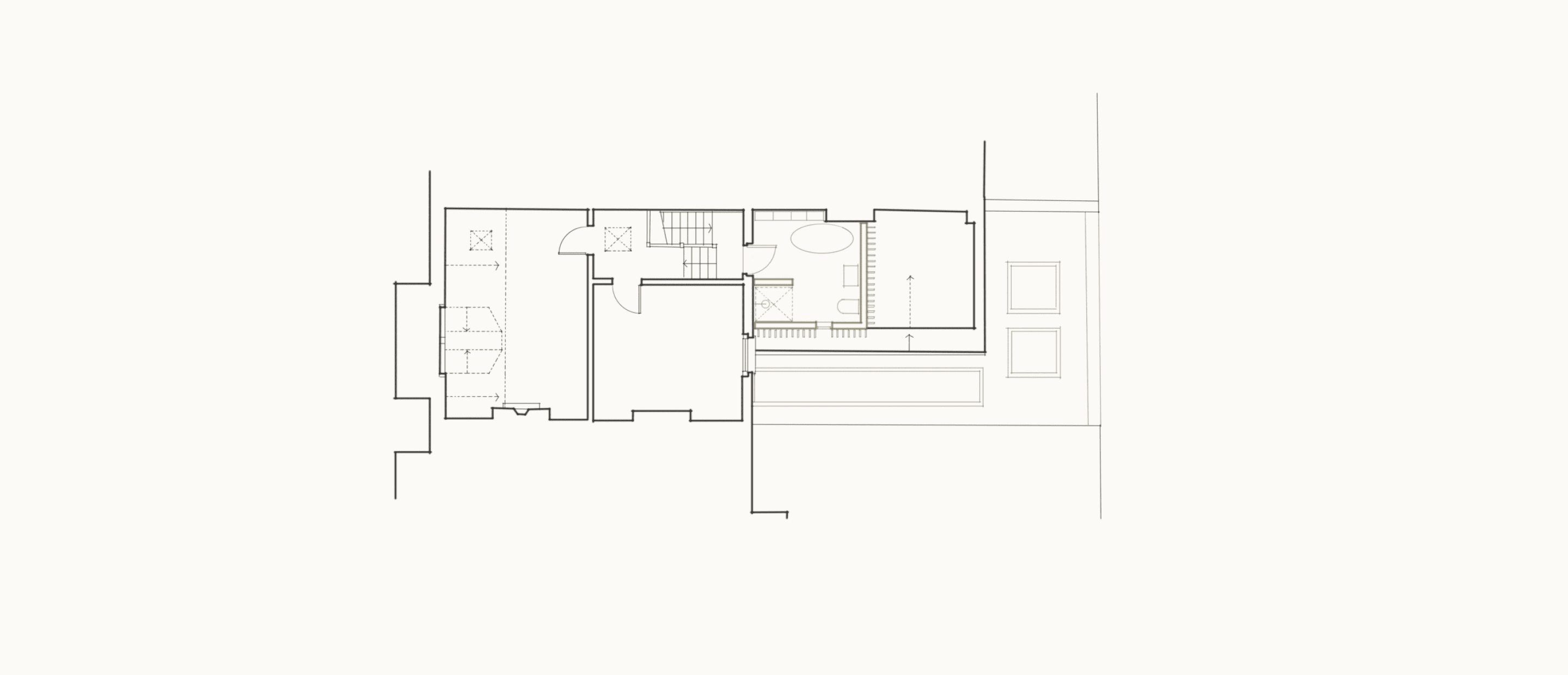
The front and rear elevations are also mirrored. This creates two pockets of space that face the garden – a courtyard on one side, and a study on the other. Generous roof lights allow natural light to pour into the open-plan kitchen and dining room, and colour is introduced through a soft green concrete floor that runs the entire length of the ground floor. Green steel screens carefully layer the windows, and an unexpected steel-clad dormer, housing a new top-floor bathroom, creates an intriguing contrast against the traditional roofline.
The conventional strategy for a side infill and rear extension is to prop the existing walls with steel beams. Inspired by the spirit of the original dwelling, this project takes an alternative approach by incorporating deep timber beams that take the load of the two storeys above. At every turn, the project pushes beyond conventional structural methodologies while utilising repetition of forms to create contrast and intrigue.
The project was delivered while working at Teatum + Teatum.
Project
Extension & refurbishment, Acton, West London
Stage
Completed, 2020

















